Khách hàng sử dụng trình duyệt chrome để trải nghiệm YouHomes tốt nhất

Airport New Center là dự án lớn tại Long Thành của chủ đầu tư Công ty TNHH Đầu Tư Bất Động Sản An Trường Đạt xây dựng với trị thế đắc địa vượt trội trở thành trung tâm dân cư đông đúc và cuộc sống hiện đại phát triển bậc nhất Long Thành, với vị trí ngay gần sân bay Long Thành sắp xây dựng, Airport New Center sẽ trở thành nơi có có mật độ dân cư đông đúc và kinh doanh sầm uất.
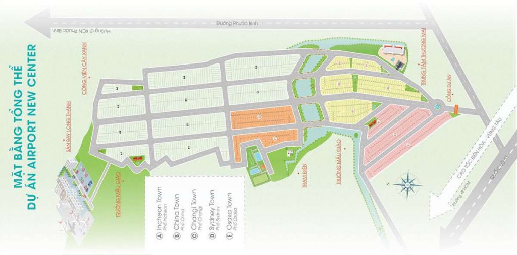
Airport New Center với diện tích hơn 200.000m2 được quy hoạch thành 1000 lô nền với đa dạng các loại diện tích từ 125m2 đến 130m2 thích hợp xây dựng nhà liền kề. Khách hàng hoàn toàn có thể xây dựng tự do ngay sau khi thanh toán hợp đồng. Giai đoạn 1 được khởi công trong năm 2019 với 457 nền. Chủ đầu tư cam kết xây dựng hệ thống hạ tầng ổn định, nay đã hoàn thiện 90%, đường vỉa hè hai bên được xây dựng thông thoáng trồng cây xanh hai bên, đường điện hòa với đường nước quốc gia, đường nước âm và hệ thống internet ổn định, hệ thống đường giao thống thuận tiện cho xe ô tô có thể di chuyển hai làn đường mà không hề xảy ra ùn tắc. Hơn hết, cư dân được nằm sát với hồ sinh thái Lộc An có thể tận hưởng bầu không khí thoáng mát và cư dân hoàn toàn có thể đi dạo sau những ngày lao động mệt mỏi. Với định hướng đến năm 2020 huyện Lộc An sẽ trở thành một trong những huyện trung tâm phát triển của tình.
Tổng quan dự án Airport New Center. Khu đô thị Airport Center II tọa lạc tại vị trí Quốc lộ 51, xã Phước Thái, huyện Long Thành, tỉnh Đồng Nai. Chỉ mất 5 đến 10 phút có thể di chuyển đến KCN Long Đức, các cụm KCN Lộc An, Tam Phước, giáp nhiều khu tái định cư và khu dân cư. Chính bởi vậy rất nhiều tiện ích hiện hữu được hình thành như trường mần non các cấp, trường đại học, UBND, trụ sở công an Long Thành, siêu thị....

Airport New Center
Top 67 dự án
An toàn an ninh tốt nhất
Căn cứ trên 13.548 đánh giá trên cộng đồng cư dân
Có hơn 8.675 thảo luận của Cư dân
trên cộng đồng cư dân
Công ty TNHH Đầu Tư Bất Động Sản An Trường ĐạtYouHomes.Vn - Website mua bán, cho thuê bất động sản uy tín tại Việt nam






