Khách hàng sử dụng trình duyệt chrome để trải nghiệm YouHomes tốt nhất

Biệt thự An Vượng Nam Cường có tổng cộng 1314 lô tại khu đô thị Dương Nội. Được đầu tư quy mô và bài bản bởi tập đoàn Nam Cường. Với lịch sử phát triển hơn 30 năm, Nam Cường đã và đang khẳng định thương hiệu Bất động sản uy tin trên thị trường.
Bên cạnh đó, việc mạnh dạn đầu tư xây dựng đô thị mới Dương Nội trở thành đô thị xanh Zero Energy đầu tiên tại Việt Nam. Cho thấy những bước đi táo bạo và hướng tới cuộc sống, hướng tới con người của tập đoàn Nam Cường.
Biệt thự An Vượng Villa tọa lạc tại vị trí trung tâm của khu đô thị mới Dương Nội. Do đó, An Vượng Villa thừa hưởng mọi lợi thế về vị trí của khu đô thị Dương Nội. Nhìn từ góc độ khu vực, biệt thự An Vượng nói riêng và khu đô thị Dương Nội nói chung sở hữu một vị trí chiến lược đặc biệt. Một mặt đô thị tiếp giáp với đường Tố Hữu. Con đường độc đạo trong thời điểm hiện tại nối trung tâm thủ đô Hà Nội với khu vực phía Tây Hà Nội.
Tuyến đường này có bus nhanh BRT đi qua, giao thông vô cùng thuận lợi. Xét về góc độ đô thị, An Vượng Villa tọa lạc tại vị trí trung tâm của đô thị. Tiếp giáp với mọi khu vực tiện ích của khu đô thị Dương Nội. Tạo nên một phân khu lớn với hệ thống tiện ích hoàn chỉnh từ điện – đường – trường – trạm – Công viên – trung tâm vui chơi giải trí… Đảm bảo đầy đủ mọi nhu cầu của cư dân tại đô thị.
Dương Nội, Quận Hà Đông, Hà Nội
x. La Khê, Quận Hà Đông, Hà Nội
x. La Khê, Quận Hà Đông, Hà Nội
x. La Khê, Quận Hà Đông, Hà Nội

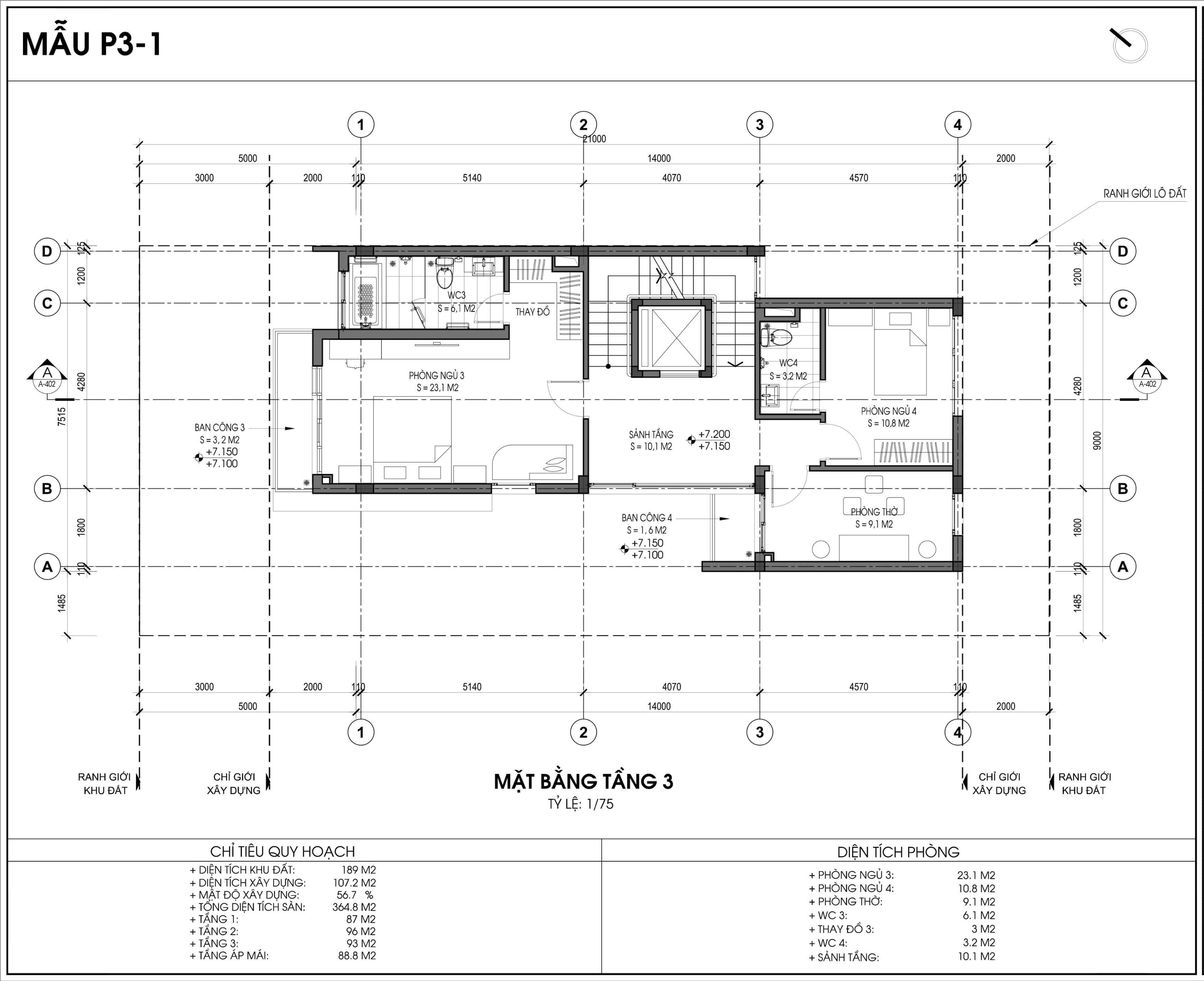
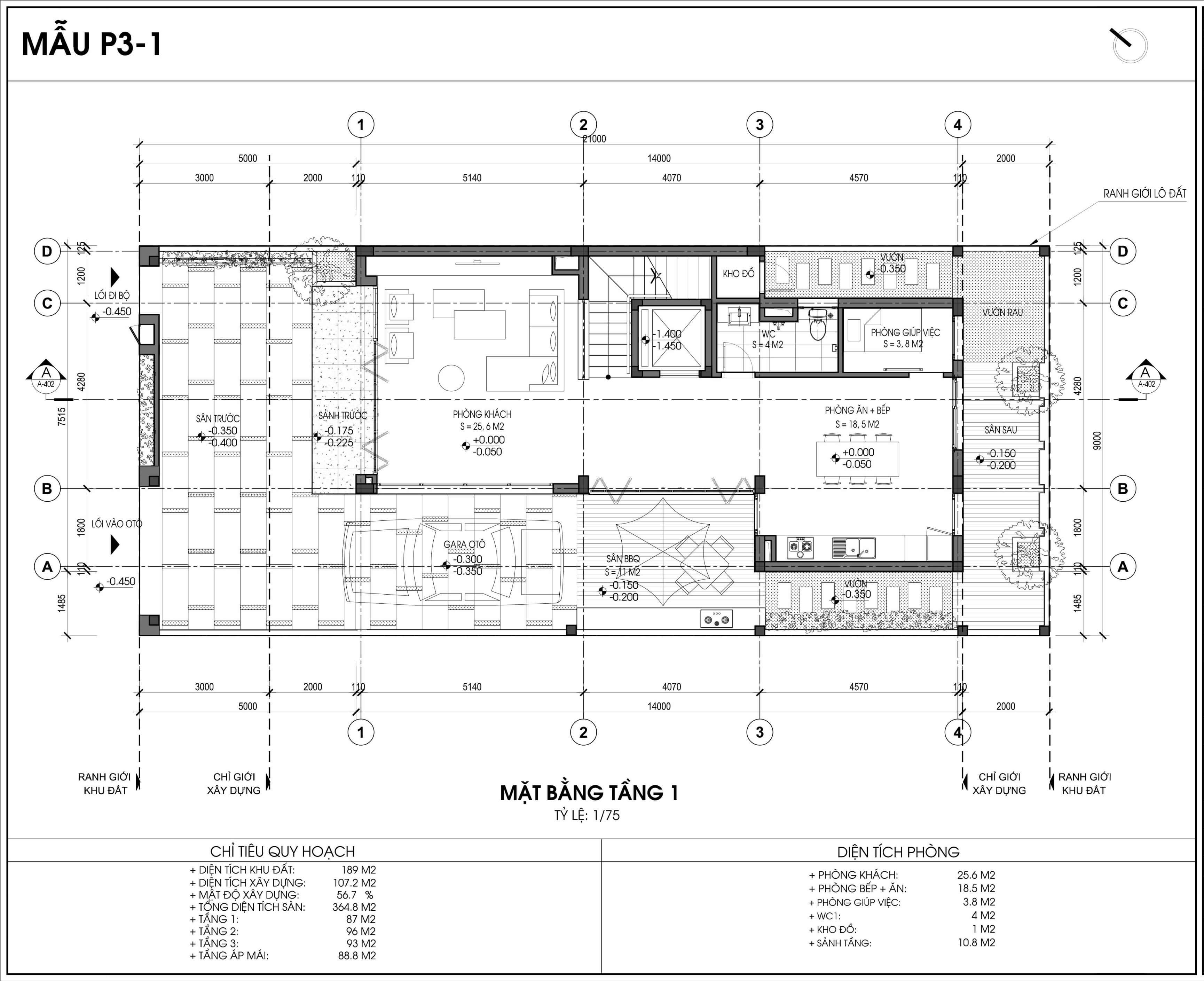
Biệt thự An Vượng Villa - Khu đô thị mới Dương Nội
Top 198 dự án
An toàn an ninh tốt nhất
Căn cứ trên 13.548 đánh giá trên cộng đồng cư dân
Có hơn 8.675 thảo luận của Cư dân
trên cộng đồng cư dân
Công ty CP Tập đoàn Nam Cường
YouHomes.Vn - Website mua bán, cho thuê bất động sản uy tín tại Việt nam


















