Khách hàng sử dụng trình duyệt chrome để trải nghiệm YouHomes tốt nhất

Do công ty CP DIC số 4 đầu tư, Ruby Tower được đánh giá là dự án sáng giá và là bước đệm đột phá trong mô hình chung cư mới tại Vũng Tàu. Dự án sở hữu vị trí đắc địa trên cung đường 3/2, vốn là cung đường tập trung rất nhiều cơ quan hành chính của tỉnh Vũng Tàu.
Nơi đây còn được coi là trung tâm của Thành phố khi kết nối với hệ thống tiện ích như Siêu thị Lotte Mart, bến xe Vũng Tàu và nhiều khu vui chơi – giải trí khác. Với vị trí đắc địa, khu vực dân trí cao và chủ đầu tư có tiếng là yếu tố thu hút nhiều nhà đầu tư và khách hàng đến với Ruby Tower.
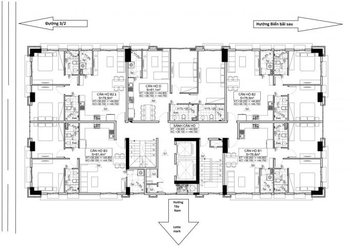
Phối cảnh chung cư Ruby Tower Ruby Tower được xây dựng với chức năng một khu tổ hợp văn phòng và chung cư cao cấp 15 tầng với số lượng căn hộ có hạn chỉ 54 căn. Khu văn phòng và căn hộ tại dự án Ruby Tower được tách riêng với gồm 5 tầng văn phòng và 10 tầng căn hộ, tạo nên cảm giác an toàn, yên tâm cho cư dân nơi đây. Sự lịch lãm, sang trọng, tinh tế của đường nét kiến trúc châu Âu là điểm nhấn của dự án Ruby Tower mang lại, với các căn hộ được thiết kế hợp lí về diện tích và công năng sử dụng, anh sáng và gió tự nhiên được tận dụng tối đa.
Các giải pháp thiết kế bền vững mà chủ đầu tư mang đến cho Ruby Tower tạo nên sự hài hòa giữa không gian ở và tiện nghi cao cấp, là quần thể sống vượt lên những lợi thế sẵn có, thiết lập tại nơi đây một không gian sống thoáng đãng, thượng lưu và đẳng cấp.

Căn hộ Ruby Tower Vũng Tàu
Top 25 dự án
An toàn an ninh tốt nhất
Căn cứ trên 13.548 đánh giá trên cộng đồng cư dân
Có hơn 8.675 thảo luận của Cư dân
trên cộng đồng cư dân
Công ty CP DIC Số 4
YouHomes.Vn - Website mua bán, cho thuê bất động sản uy tín tại Việt nam









