5 mẫu bản vẽ thiết kế nhà 2 tầng hoàn chỉnh, hiện đại nhất
Mẫu nhà 2 tầng là mẫu nhà phổ biến hiện nay, vừa đáp ứng được những nhu cầu cần thiết trong gia đình vừa đáp ứng được tính thẩm mỹ cho ngôi nhà.

Có thể thấy rằng, ngày càng nhiều những ngôi nhà hiện đại với những kiến trúc độc đáo và lạ mắt. Trong những mẫu nhà từ 1 đến 5 tầng được thiết kế ở cả nông thôn và hiện đại thì mẫu nhà 2 tầng vẫn được lựa chọn nhiều nhất. Giúp bạn có thêm ý tưởng cho ngôi nhà 2 tầng của mình, bài viết dưới đây của YouHomes sẽ chia sẻ với các bạn 5 mẫu bản vẽ thiết kế nhà 2 tầng hoàn chỉnh, hiện đại nhất.
Mẫu bản vẽ thiết kế nhà 2 tầng mái thái thu hút mọi ánh nhìn
Bản vẽ thiết kế của mẫu nhà 2 tầng mái thái tuyệt đẹp được nhà kiến trúc sư tài ba thiết kế, mang tới một không gian vô cùng rộng rãi, thoáng mát.

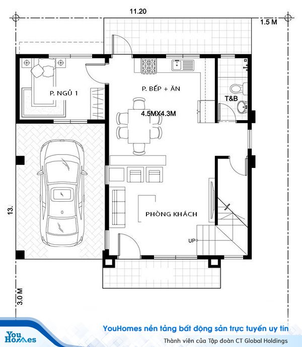
Tầng 1 của ngôi nhà được thiết kế tiện nghi, các khu vực chức năng trong ngôi nhà được sử dụng chung không gian mang đến một không gian mở thoáng mát, rộng rãi. Bước vào ngôi nhà là phòng khách với bộ ghế sofa nhỏ được đặt sát tường giúp tối đa không gian phòng khác.
Phòng bếp và phòng ăn được thiết kế bên trái cửa chính với không gian rộng rãi, thoáng mát. Cửa sổ được thiết kế tại phòng ăn giúp lưu thông không khí trong và ngoài ngôi nhà, đảm bảo không bị ám mùi thức ăn trong nhà.
Phía góc trong cùng là nhà vệ sinh chung, cầu thang được đặt giữa trung tâm giúp tạo điểm nối giữa phòng khách và phòng ăn.

Để đảm bảo không gian yên tĩnh và riêng tư cho các thành viên trong gia đình thì 3 phòng ngủ được thiết kế tại tầng 2. Ba phòng ngủ được bố trí sát nhau, mỗi căn phòng đều được thiết kế cửa sổ để có thể tận dụng được ánh sáng thiên nhiên và ngắm được cảnh quan xung quanh ngôi nhà.

Nhìn từ xa ngôi nhà nổi bật như một khu nghỉ dưỡng vậy. Các mặt của ngôi nhà đều được thiết kế những ô cửa kính giúp ngôi nhà luôn ngập tràn ánh sáng và thoáng mát. Ngôi nhà còn ghi điểm bởi màu sắc vô cùng hài hòa, màu vàng làm kết hợp với hệ mái thái màu xanh than tạo cảm giác nhẹ nhàng, tinh tế.
Bao quanh ngôi nhà làm sân cỏ xanh mát càng làm cho không gian nơi đây thêm yên bình, thoáng mát.
Mẫu bản vẽ thiết kế nhà 2 tầng mái thái chữ L
Nếu bạn đang tìm kiếm mẫu nhà 2 tầng mái thái hiện đại thì bạn không nên bỏ qua mẫu nhà 2 tầng mái thái chữ L này.

Tầng 1 của ngôi nhà được thiết kế rất khoa học. Đằng sau mái hiên cao rộng và thoáng mát là phòng khách rộng rãi với bộ bàn ghế được kê sát tường để tạo lối đi lại thuận tiện. cầu thang thông tầng được đặt giữa phòng khách và phòng ngủ tầng 1.
Phòng bếp và phòng ăn được thiết kế rộng rãi giúp những thành viên trong gia đình có những bữa ăn ngon miệng nhất. Phòng vệ sinh nhỏ được thiết kế cạnh phòng ngủ tiện lợi.

Tầng 2 bố trí 3 phòng ngủ có diện tích bằng nhau, phòng thờ hướng ban công phụ phía mặt tiền, khoảng ban công này sẽ đón nhận ánh sáng giúp căn phòng luôn ngập tràn ánh sáng. Phòng ngủ 4 là phòng ngủ chính hướng ban công chính, lại bố trí gần này sảnh thang thông tầng tạo nên hành làng di chuyển khá dễ dạng vào không gian phía trong.

Phối hợp màu sắc hài hòa, màu trằng tươi sáng làm nổi bật hệ mái thái màu xanh nổi bật. Ban công tầng 2 nổi bật với lan can màu đen có họa tiết hoa văn cầu kỳ.
Sử dụng đá ốp bậc tam cấp và hiên chính, màu nâu tối không chỉ tạo nên một mặt tiền thoáng đãng, nó còn giúp cân bằng tổng thể ngôi nhà, đồng thời mặt tiền và phối cảnh sân vườn trong không gian chung trở nên hài hòa hơn rất nhiều.
>> Xem thêm: Top 5 mẫu thiết kế nhà 2 tầng mái thái dẫn đầu xu hướng năm 2020!
Mẫu bản vẽ thiết kế nhà 2 tầng mái thái đẹp với chi phí 500 triệu
Mẫu nhà 2 tầng mái thái 3 phòng ngủ hiện đại với chi phí 500 triệu, mẫu nhà này phù hợp với những gia đình trẻ hay những gia đình ít thành viên.

Cầu thang thông tầng thiết kế ở trung tâm, chân cầu thang được tận dụng để trồng tiểu cảnh và phối hợp với không gian giếng trời, chiếu thẳng từ phần mái công trình xuống phía dưới. Phòng khách, phòng ăn và phòng bếp đều được thiết kế rất tiện nghi, đảm bảo được sinh hoạt của các thành viên trong gia đình.

3 phòng ngủ được thiết kế trên tầng 2 để đảm bảo không gian yên tĩnh cho các thành viên trong gia đình. Thiết kế chung hành lang theo chiều dọc nên vẫn đảm bảo không gian riêng tư cần thiết cho mỗi phòng.

Thiết kế mặt tiền độc đáo với những khối hình học đa dạng tạo điểm nhấn độc đáo cho ngôi nhà. Nếu bạn đang tìm kiếm một mẫu nhà 2 tầng mái thái dành cho đôi vợ chồng trẻ thì hãy tham khảo mẫu nhà này nhé!
Mẫu bản vẽ thiết kế nhà 2 tầng mái thái nông thôn
Với những gia đình có ô tô con thì rất chú trọng việc thiết kế chỗ để ô tô. Các bạn có thể tham khảo mẫu nhà dưới đây để có thêm phương án xây dựng ngôi nhà của mình nhé!

Tầng 1 của ngôi nhà với phần gara ô tô được thiết kế ngay bên cạnh, có mái che tiện lợi. Phòng khác được thiết kế ngay cửa ra vào nên thuận tiện cho việc di chuyển giữa các thành viên trong gia đình và hợp với phong thủy của ngôi nhà.
Phòng bếp, nhà vệ sinh chung được bố trí lui về góc phía tay phải của mặt bằng. Một phòng ngủ nhỏ được thiết kế lui về phía trong không gian để xe.

Tầng 2 thiết kế và bố trí 2 phòng ngủ, phòng ngủ master hướng chính hướng ban công trước, phòng ngủ số 2 được thiết kế lui vào phía trong. Cầu thang thông tầng được bố trí lui phía trong nên đã biết tận dụng không gian đó để thiết kế nhà vệ sinh lui về góc đối diện với cầu thang.
.jpg)
Ngôi nhà được thiết kế với những đường nét khỏe khoắn mang đến cảm giác vững chãi cho ngôi nhà. Màu sắc kết hợp hài hòa, gam màu trung tính được sử dụng kết hợp cùng với hệ thống cửa kính, vừa đón nhận được nhiều ánh sáng, vừa có thể giúp cho dòng vượng khí lưu thông đồng bộ trong các không gian khác.
Mẫu bản vẽ thiết kế nhà mái thái 2 tầng nông thôn 110m2 4 phòng ngủ.
Mẫu nhà mái thái 2 tầng nông thôn thiết kế sang trọng và hiện đại với 4 phòng ngủ được xây dựng trên diện tích 110m2. Mẫu nhà này thích hợp với gia đình đông người hoặc 3 thế hệ.

Ngôi nhà có diện tích tương đối rộng nên tầng 1 được thiết kế 2 phòng ngủ, phòng khách, phòng bếp và phòng ăn vô cùng thoáng mát, rộng rãi. Cầu thang thông tầng được thiết kế ở giữa, 2 phòng ngủ thiết kế 2 bên, thiết kế khá thoáng và mát.

Tầng 2 được thiết kế tập chung vào không gian sinh hoạt chung và khu vực chức năng như khu giặt và phơi quần áo, phòng sinh hoạt chung đối diện sảnh cầu thang. Phòng thờ thiết kế hướng ban công giúp căn phòng nhiều ánh sáng, mang lại cảm giác thoáng mát, sạch sẽ thể hiện sự tôn nghiêm.

Thật không ngoa nếu nói rằng ngôi nhà như một cung điện thu nhỏ. Bậc tam cấp sử dụng màu gỗ nâu toát lên vẻ sang trọng, tạo điểm nhấn nhẹ nhàng cho ngôi nhà. Thiết kế các ô cửa rộng đem đến một không gian sống vô cùng thoáng mát cho những thành viên trong gia đình. Những ô cửa gỗ nổi bật trên nền sơn trắng tươi sáng với những hoa văn nghệ thuật đẹp mắt.
Nếu bạn đang tìm kiếm một mẫu nhà cho gia đình nhiều thành viên thì không nên bỏ qua ý tưởng này nhé!
Bài viết trên đây của YouHomes mang đến cho các bạn 5 mẫu bản vẽ thiết kế nhà 2 tầng hiện đại, mong rằng những mẫu thiết kế trên sẽ giúp bạn tìm ra được nhiều ý tưởng độc đáo cho ngôi nhà của bạn.
Có lẽ bạn nên đọc thêm
Nhà cấp 4 là gì? Phân biệt nhà cấp 4 với nhà cấp 1, 2, 3
Nhà cấp 4 khá phổ biến trong đời sống sinh hoạt hàng ngày. Nhưng đa số người vẫn khá mơ hồ về khái niệm về nhà cấp 4 cũng như nhà cấp 1, 2, 3. Vậy những loại hình nhà này khác nhau ở điểm nào?Biệt thự song lập là gì? Phân biệt với biệt thự đơn lập
Biệt thự song lập là ngôi nhà mơ ước của rất nhiều người bởi kiến trúc độc đáo và sang trọng mang đến một tổng thể cân đối, hài hòa.Shophouse là gì? Điểm đặc biệt của mô hình nhà Shophouse
Bạn đang tự hỏi mô hình nhà Shophouse là gì? Có đặc điểm như thế nào? Có những ưu nhược điểm gì? Hãy để YouHomes cùng bạn tìm hiểu nhé!Căn hộ Duplex là gì? Những điểm khác biệt của căn hộ Duplex
Căn hộ Dulex là khái niệm vẫn còn khá mới mẻ với chúng ta. Hãy cùng YouHomes tìm hiểu về căn hộ Duplex và những lợi ích vượt trội của nó nhé!
BÌNH LUẬN


























