20 mẫu nhà lệch tầng đẹp hiện đại nhất 2020
Những mẫu nhà lệch tầng đem lại sự tối ưu trong thiết kế giúp ngôi nhà luôn thông thoáng lấy được gió và ánh sáng tự nhiên. Dưới đây là 20 mẫu nhà lệch tầng đẹp hiện đại nhất 2020.

Nếu bạn có tìm hiểu về thiết kế nhà có lẽ sẽ không còn lạ lẫm với những mẫu nhà lệch tầng. Nhà lệch tầng ngày càng trở nên phổ biến và được ưa chuộng bởi phong cách hiện đại đem lại nhiều lợi ích cho không gian sống.
Bạn đang tìm kiếm cách thiết kế một căn nhà lệch tầng đẹp hiện đại thì đây là một bài viết bạn không thể bỏ qua.
Mẫu thiết kế mặt tiền nhà lệch tầng đẹp hiện đại năm 2020
Nhà lệch tầng là kiểu nhà được thiết kế với có các mặt sàn chênh lệch về độ cao, các mặt sàn nằm ở từng phần theo kiểu lệch. Thông thường với kiểu nhà lệch tầng, cầu thang sẽ nằm ở giữa nhà và sẽ có từ 2-3 phòng bao quanh. Thiết kế nhà lệch tầng đẹp nhìn từ trên xuống, khu vực cầu thang trở thành giếng trời lấy sáng, gió cho không gian nhà.
.jpg)
.jpg)
Các mẫu nhà lệch tầng mang phong cách hiện đại với nhiều lợi ích cho không gian sống, đẹp và thoải mái. Cùng sự ứng dụng linh hoạt tùy ý sắp đặt theo ý muốn, các mẫu thiết kế nhà lệch tầng ngày càng trở nên đa dang và phù hợp với đời sống hiện đại.
.jpg)
.jpg)
Tùy theo sở thích và nhu cầu mà bạn có thể lựa chọn thiết kế mặt tiền nhà lệch tầng cho phù hợp. Ngoài ra cũng nên lưu ý về màu sơn và cách phối, bạn nên lựa chọn những gam màu trung tính sẽ giúp căn nhà trở nên tinh tế hơn.
.jpg)
.jpg)
Xem thêm: Thiết kế mẫu nhà lệch tầng hiện đại lên ngôi năm 2020
.jpg)
Phần mặt tiền của bất cứ loại nhà nào cũng rất quan trọng, bởi vậy nếu có ngân sách bạn nên chú trọng đầu tư phần mặt tiền ngôi nhà. Nhà lệch tầnghiện đại ngoài thiết kế ấn tượng và hợp lý bên trong thì cũng cần có được một vẻ bề ngoài đẹp.
.jpg)
.jpg)
.jpg)
Với phần mặt tiền nếu có thẻ nên lựa chọn những nguyên vật liệu tốt nhất để tăng độ bền cho căn nhà bởi đây chính là nơi hứng chịu nắng, gió, mưa, bụi bẩn,... hàng ngày. Vì vậy việc bạn lựa chọn những nguyên vật liệu chất lượng kém sẽ rút ngắn tuổi thọ công trình, bạn sẽ phải bỏ thêm chi phí cho việc tu sửa hàng năm.
Mẫu thiết kế mặt bằng nội thất nhà lệch tầng đẹp hiện đại
Ngoài những mẫu mặt tiền mà bạn đã xem bên trên, bạn có thể tham khảo thêm các mẫu thiết kế mặt bằng nội thất cho mẫu nhà lệch tầng. Tùy vào nhu cầu hàng ngày mà bạn có thể lựa chọn mẫu thiết kế phù hợp.
.jpg)
.jpg)
Cách bố trí các phòng cho nhà lệch tầng không quá phức tạp nhưng vẫn cần có sự cân nhắc hợp lý để chi phí thiết kế và xây dựng không bị độn lên quá cao. Bạn cũng có thể tham khảo một số cách tiết kiệm chi phí khi xây dựng nhà TẠI ĐÂY.
.jpg)
Bạn có thể cân nhắc làm thêm không gian xanh hay một hồ nước nhỏ nhắn bên trong nhà bởi nhà lệch tầng có thể tận dụng ánh sáng bên ngoài và lưu thông không khí cực kỳ tốt. Vì thế, sự đầu tư cho cây xanh hay hồ nước bên trong với mẫu nhà lệch tầng sẽ không bao giờ là dư thừa.
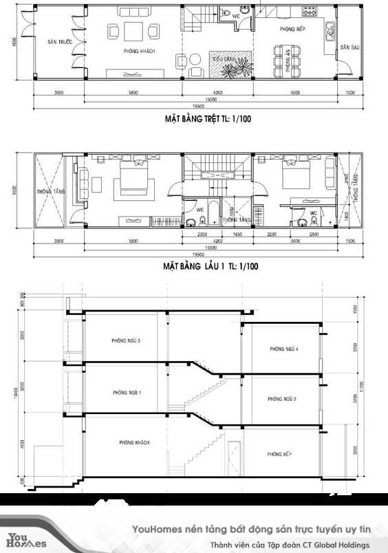
Bản vẽ thiết kế nhà lệch tầng đẹp
Để có hình dung rõ nét hơn về kích thước và cách bố trí sao cho hợp lý nhất thì dưới đây sẽ là một số bản vẽ thiết kế nhà lệch tầng đẹp mà bạn có thể nghiên cứu ứng dụng vào thực tế.
- Bản vẽ thiết kế nhà lệch tầng đẹp số 1:
.jpg)
- Bản vẽ thiết kế nhà lệch tầng đẹp số 2:
.jpg)
- Bản vẽ thiết kế nhà lệch tầng đẹp số 3:
.jpg)
.jpg)
.jpg)
.jpg)
.jpg)
- Bản vẽ thiết kế nhà lệch tầng đẹp số 4:
.jpg)
- Bản vẽ thiết kế nhà lệch tầng đẹp số 5:
.png)
- Bản vẽ thiết kế nhà lệch tầng đẹp số 6:
.jpg)
.jpg)
- Bản vẽ thiết kế nhà lệch tầng đẹp số 7:
.png)
Trên đây là tổng hợp những mẫu nhà lệch tầng đẹp hiện đại nhất 2020 mà bạn có thể tham khảo và lựa chọn. YouHomes mong rằng bạn sẽ sớm tìm được mẫu nhà ưng ý. Chúc bạn sớm sở hữu căn nhà lệch tầng đúng như mong muốn!
Có lẽ bạn nên đọc thêm
Đâu là thiết kế biệt thự 2 tầng lý tưởng cho bạn?
Khi lựa chọn thiết kế biệt thự 2 tầng, bạn sẽ phải đau đầu lựa chọn ra cách thiết kế hợp lý nhất để vừa đảm bảo thẩm mỹ vừa tiện dụng. Bài viết sau YouHomes sẽ giúp bạn có sự lựa chọn dễ dàng hơn.Sống trong ngôi nhà 8m2 liệu có khả thi?
Bạn có tin chỉ trong 8m2 vẫn có đầy đủ các phòng chức năng? Hãy cùng khám phá căn hộ của cô nàng Emma sống tại Tokyo, Nhật Bản.Khiến báo mỹ trầm trồ, nhà gạch tại Đà Nẵng có gì đặc biệt?
Ngôi nhà 80m2 với thiết kế cực kỳ ấn tượng với cách sắp xếp gạch thô độc đáo, hãy cùng tìm hiểu thêm về thiết kế bên trong căn nhà, có thể bạn sẽ có được ý tưởng thiết kế mới cho căn hộ của mình.Nên làm cầu thang bằng gỗ hay bằng kính?
Cầu thang là phương tiện để kết nối không gian giữa các tầng với nhau. Cầu thang không chỉ đơn giản là sợi dây để kết nối các tầng với nhau mà việc thiết kế cầu thang là cả một nghệ thuật.
BÌNH LUẬN



























