Ngỡ ngàng thiết kế vô cùng độc đáo của căn nhà ống
Thiết kế đơn giản mà thông minh, mang ánh sáng và cây xanh tràn ngập không gian, ngôi nhà ống này khiến người xem đi hết bất ngờ này đến bất ngờ khác, lôi cuốn đến từng góc nhỏ của ngôi nhà.

Trên tổng diện tích sàn khoảng 557m2, ngôi nhà ống được thiết kế 3 tầng với không gian tầng 1 là nơi dành cho khu vực sinh hoạt chung. Khu vực nghỉ ngơi riêng tư được đưa lên tầng cao thoáng sáng. Đối với nhà ống, việc thiết kế sao cho mang được nắng gió vào khắp các không gian là cả một vấn đề. Tuy nhiên, nhờ lợi thế về diện tích cũng như chiều dài của ngôi nhà nên toàn bộ không gian được chiếu sáng bởi hệ thống giếng trời rộng giữa nhà. Nơi đây được trồng nhiều cây đóng vai trò như một lá phổi xanh, là trái tim cho cả ngôi nhà.

Ngôi nhà ống tuyệt đẹp này nằm ở thành phố Surat, Ấn Độ. Trên tổng diện tích khoảng 557m2 ngôi nhà được xây 3 tầng với không gian rộng thoáng và tràn ngập cây xanh.

Xung quanh ngôi nhà được trồng rất nhiều cây xanh mang bầu không khí trong lành và tươi mát cho khắp không gian.

Tầng 1 được thiết kế đơn giản với các khu vực chức năng chung như bếp, khu vực ăn uống, phòng khách và một phòng ngủ. Một góc giữa nhà được dùng để làm giếng trời với khung kính bao quanh manh nắng gió cho khắp không gian.

Nội thất trong nhà được trang trí đơn giản với chất liệu chủ yếu là gỗ tự nhiên mang lại không gian thân thiện và ấm cúng cho khách vào nhà.

Phòng khách đơn giản với ghế băng dài, ghế bập bênh và một bàn trà gỗ đặt ngay cạnh lối vào nhà. Toàn bộ tường và trần nhà để thô kết hợp nội thất gỗ tạo nét không gian vừa xưa cũ vừa hiện đại độc đáo cho công trình.

Bước vào bên trong là không gian dành cho khu vực bếp và bàn ăn. Bộ bàn ăn lớn đủ chỗ cho cả đại gia đình tuyệt đẹp và thoáng sáng cạnh giếng trời.

Khu vực giếng trời được bao bọc bằng ửa kính có thể dễ dàng đóng mở để mang nắng gió tràn ngập ngôi nhà. Cầu thang dẫn lên tầng 2 có lan can thiết kế bằng dây cáp thông thoáng.

Phòng ngủ được thiết kế đơn gian mà rộng thoáng và tiện nghi.

Không gian tầng 2 thoáng sáng được thiết kế với nền và sàn nhà hệt như tầng 1. Bóng đổ từ giếng trời in hình những thanh lam càng tô điểm cho vẻ đẹp yên bình, tĩnh lặng cho ngôi nhà.

Phòng ngủ tuyệt đẹp với cửa sổ hình tròn mở ra khu vực giếng trời.

Không gian tầng 2 nhìn từ trên cao.

Nhờ có cây xanh ở khu vực giếng trời mà không khí trong nhà luôn trong lành và dễ chịu.

Ngôi nhà đặc biệt này được thiết kế đơn giản nhưng lại rất tiện nghi phù với kinh tế của người nông dân ở Ấn Độ.

Không cầu kỳ và không tốn nhiều chi phí cho nội thất, nhưng ngôi nhà vẫn rất đẹp và chẳng thiếu tiện nghi gì.

Hình dạng của ngôi nhà được phát triển từ dạng Shikhara - một đặc điểm của kiến trúc đền Hindu truyền thống ở Ấn Độ.

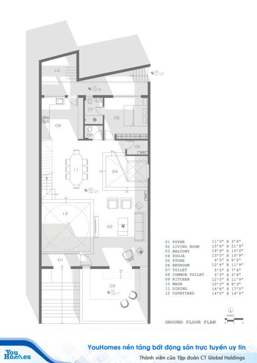
Sơ đồ bố trí không gian tầng 1, tầng 2.

Sơ đồ bố trí không gian tầng 3.

Mặt đứng công trình.
Có lẽ bạn nên đọc thêm
Đâu là thiết kế biệt thự 2 tầng lý tưởng cho bạn?
Khi lựa chọn thiết kế biệt thự 2 tầng, bạn sẽ phải đau đầu lựa chọn ra cách thiết kế hợp lý nhất để vừa đảm bảo thẩm mỹ vừa tiện dụng. Bài viết sau YouHomes sẽ giúp bạn có sự lựa chọn dễ dàng hơn.Sống trong ngôi nhà 8m2 liệu có khả thi?
Bạn có tin chỉ trong 8m2 vẫn có đầy đủ các phòng chức năng? Hãy cùng khám phá căn hộ của cô nàng Emma sống tại Tokyo, Nhật Bản.Khiến báo mỹ trầm trồ, nhà gạch tại Đà Nẵng có gì đặc biệt?
Ngôi nhà 80m2 với thiết kế cực kỳ ấn tượng với cách sắp xếp gạch thô độc đáo, hãy cùng tìm hiểu thêm về thiết kế bên trong căn nhà, có thể bạn sẽ có được ý tưởng thiết kế mới cho căn hộ của mình.Nên làm cầu thang bằng gỗ hay bằng kính?
Cầu thang là phương tiện để kết nối không gian giữa các tầng với nhau. Cầu thang không chỉ đơn giản là sợi dây để kết nối các tầng với nhau mà việc thiết kế cầu thang là cả một nghệ thuật.
BÌNH LUẬN



























