Thiết kế nhà "xanh" độc đáo tại Bắc Ninh
Ngôi nhà nổi bật giữa con phố với những thanh gỗ xoay cực kỳ độc đáo tại mặt tiền, có thể đóng mở tùy ý để thông gió lại giúp chắn bụi cực kỳ hiệu quả, phù hợp với những ngôi nhà mặt đường.


Sở hữu thiết kế độc đáo ngôi nhà nổi bật giữa con phố với hệ thống thanh gỗ bên ngoài, vừa giúp ngôi nhà trở nên kín đáo lại giúp thông gió và chắn bụi hiệu quả.

Những thanh gỗ có thể xoay chuyển tùy ý chỉ bằng tay quay đơn giản, tùy theo mục đích sử dụng, có thể mở ra khi muốn lấy thêm ánh nắng cho cây xanh quang hợp.

Sân vườn trên tầng cao độc đóa với những dải cây cỏ xen kẽ lối đi, giúp người sử dụng luôn có cảm giác được hòa mình vào với thiên nhiên.

Không gian bên trong nhà với phần giếng trời ngoài hành lang cùng cách bố trí vách ngăn tạo nên những mảng ánh sáng tuyệt đẹp, kết hợp cùng hệ thống cửa gỗ xoay thông thoáng giúp cả ngôi nhà bừng sáng và tận dụng được triệt để ánh sáng tự nhiên.

Phần vườn bên ngoài lối vào nhà với nhiều loại cây cảnh nhỏ nhắn. Sự lựa chọn thiết kế vách ngăn bằng gạch với những lỗ thông gió tạo nên những mảng sáng tối xen kẽ.

Phần của gỗ bên ngoài với thiết kế tay xoay cực kỳ tiện lợi khi sử dụng.

Không gian phòng khách với nội thất bằng gỗ với thiết kế tối giản nhưng cực kỳ tinh tế. Sàn gỗ và đồ nội thất đem lại cảm giác ấm cúng và tiện lợi khi sử dụng.

Hành lang cầu thang với thiết kế mở kết hợp cùng giếng trời và những vách ngăn độc đáo tạo nên những vệt nắng tôn lên vẻ đẹp của thiết kế.


Không gian bừng sáng với ô của sổ bằng kính và trần cao. Vách ngăn bên ngoài hành lang cũng được tận dung bằng kính giúp ngôi nhà càng trở nên thông thoáng và rộng rãi hơn.


Hành lang đối xứng tạo những mảng hình khối đẹp cho căn hộ.

Phòng ngủ thông thoáng với phần hông nhà là vườn cây nhỏ nhắn.

Nhờ thiết kế hợp lý, mọi ngóc ngách trong căn phòng đều tận dụng được ánh sáng tự nhiên bên ngoài.

Có thể bạn quan tâm:
Nhà phố Đà Nẵng lột xác sau cải tạo

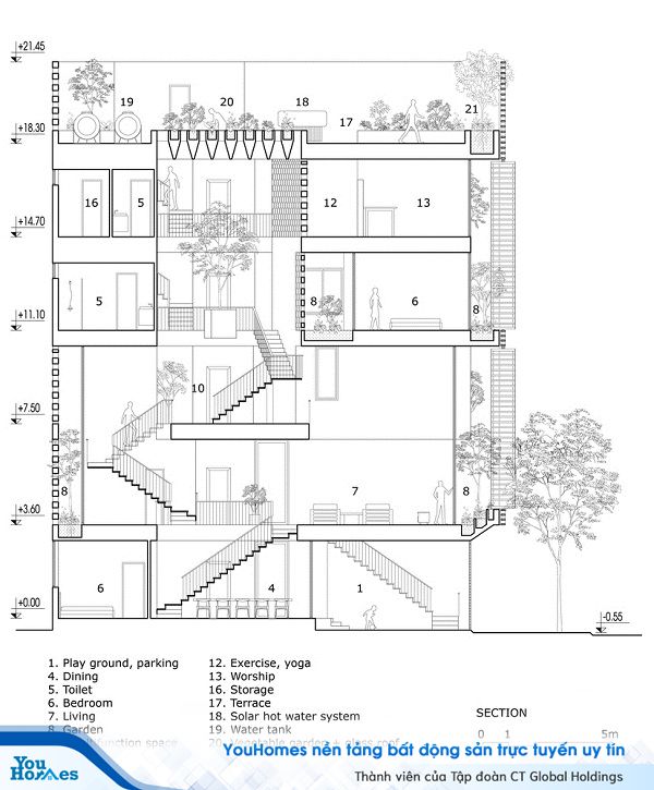
Bản vẽ thiết kế tổng thể ngôi nhà

Có lẽ bạn nên đọc thêm
Đâu là thiết kế biệt thự 2 tầng lý tưởng cho bạn?
Khi lựa chọn thiết kế biệt thự 2 tầng, bạn sẽ phải đau đầu lựa chọn ra cách thiết kế hợp lý nhất để vừa đảm bảo thẩm mỹ vừa tiện dụng. Bài viết sau YouHomes sẽ giúp bạn có sự lựa chọn dễ dàng hơn.Sống trong ngôi nhà 8m2 liệu có khả thi?
Bạn có tin chỉ trong 8m2 vẫn có đầy đủ các phòng chức năng? Hãy cùng khám phá căn hộ của cô nàng Emma sống tại Tokyo, Nhật Bản.Khiến báo mỹ trầm trồ, nhà gạch tại Đà Nẵng có gì đặc biệt?
Ngôi nhà 80m2 với thiết kế cực kỳ ấn tượng với cách sắp xếp gạch thô độc đáo, hãy cùng tìm hiểu thêm về thiết kế bên trong căn nhà, có thể bạn sẽ có được ý tưởng thiết kế mới cho căn hộ của mình.Nên làm cầu thang bằng gỗ hay bằng kính?
Cầu thang là phương tiện để kết nối không gian giữa các tầng với nhau. Cầu thang không chỉ đơn giản là sợi dây để kết nối các tầng với nhau mà việc thiết kế cầu thang là cả một nghệ thuật.
BÌNH LUẬN



























