Nhà ống 4 tầng tiện nghi phù hợp với mọi gia đình
Ngôi nhà được nhà kiến trúc sư thiết kế với tiêu chí thoáng mát, tiện nghi và đảm bảo đủ các công năng phục vụ cho hoạt động sinh hoạt hằng ngày của các thành viên trong gia đình.

Nhà ống 4 tầng được xây dựng trên mảnh đất 80m2 4 phòng ngủ vô cùng hiện đại và tiện nghi. Ngôi nhà được nhà kiến trúc sư thiết kế với tiêu chí thoáng mát, tiện nghi và đảm bảo đủ các công năng phục vụ cho hoạt động sinh hoạt hằng ngày của các thành viên trong gia đình.
Mặt tiền của ngôi nhà thiết kế lạ mắt tạo điểm nhấn riêng cho ngôi nhà. Những thanh lam được sử dụng như tạo được ngôn ngữ riêng, nói lên nét đặc biệt, tính thoáng mát của nó. Cách thanh lam còn làm giàn leo cho các cây xanh leo và bám vào làm đẹp và làm mát cho ngôi nhà.

Phần sân nhỏ phía trước nhà được bao quanh bởi bức tường trắng kiên cố và cánh cổng rộng.
Xem ngay: Nhà phố có mặt tiền rộng, thoáng đẹp với giá 4,1 tỷ chỉ có tại YouHomes!

Phần sân trước chủ nhà không dùng để ô tô vì thế được thiết kế với diện tích vừa phải. Một tiểu cảnh thác nước được thiết kế đặt cạnh tường giúp phần sân trước nhà thêm sinh động, góp phần giúp phong thủy của ngôi nhà tốt hơn.

Phòng khách hiện đại với gam màu chủ đạo là màu trắng kết hợp với sàn màu nâu mang đến cảm giác sang trọng và tinh tế. Bộ sofa kê sát tường đối diện kệ tivi giúp tiết kiệm không gian, tạo lối đi rộng cho phòng khách. Kệ tivi có các ngăn có thể chứa được các vật dụng nhỏ giúp căn phòng ngăn nắp hơn. Bức tranh nghệ thuật tạo điểm nhấn đặc sắc cho phòng khách. Bể cá vừa có tác dụng trang trí phòng khách thêm sinh động còn còn tốt cho phong thủy của phòng khách mang nhiều sinh khí tốt, hút tài lộc vào nhà.
Có thể bạn quan tâm:
Mẫu nhà cấp 4 tiện nghi cho đôi vợ chồng trẻ
Nét đẹp trong ngôi nhà thiết kế theo phong cách Bohemian
Sự kết hợp hoàn hảo của gỗ và bê tông trong ngôi nhà cấp 4 mộc mạc

Trước phòng khách có khu để xe được ngăn cách bởi bậc tam cấp và vách ngăn thẳng theo chiều cao của phòng khách.

Màu sắc nhẹ nhàng mang đến sự tinh tế cho căn bếp. Bếp được thiết kê dạng chữ I sát tường khiến không gian phòng bếp rộng rãi hơn. Hệ tủ treo, các ngăn tủ giúp lưu trữ được các vật dụng trong bếp và thuận tiện quá trình sử dụng.

Căn bếp nhận được ánh sáng thiên nhiên qua ô của sổ nên lúc luôn tươi sáng, không lo bị tối và ngột ngạt. Ngồi trong phòng ăn có thể nhìn được tiểu cảnh phía sau nhà rất đẹp.

Khoảng thông tầng vừa được hưởng ánh sáng tự nhiên từ giếng trời cung cấp ánh sáng cho ngôi nhà vừa giúp đảm bảo đối lưu tốt hơn giữa tầng trong ngôi nhà.

Khu vực sân sau được trồng các loại cây cối tạo cảm giác gần gũi với thiên nhiên. Trúc, chuối cảnh,... được trồng đan xen nhau và có chỗ ngồi để gia chủ có thể thư giãn.
Sở hữu nhà riêng vô cùng tiện nghi với giá chỉ từ 1,2 tỷ duy nhất tại YouHomes!


Các phòng ngủ đều được thiết kế đơn giản nhưng không kém phần sang trọng và luôn tận dụng được nguồn sáng tự nhiên qua các ô của sổ. Các bức tranh nghệ thuật được lựa chọn khéo léo tạo được điểm nhất cho căn phòng.

Trên sân thượng bố trí phòng thờ phía trước, khu giặt phơi phía sau và nhiều khoảng sân để ngồi thư giãn, trồng cây cảnh, rau.
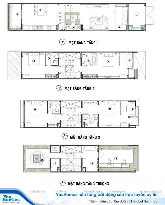
Mặt bằng thiết kế của ngôi nhà.

Có lẽ bạn nên đọc thêm
Đâu là thiết kế biệt thự 2 tầng lý tưởng cho bạn?
Khi lựa chọn thiết kế biệt thự 2 tầng, bạn sẽ phải đau đầu lựa chọn ra cách thiết kế hợp lý nhất để vừa đảm bảo thẩm mỹ vừa tiện dụng. Bài viết sau YouHomes sẽ giúp bạn có sự lựa chọn dễ dàng hơn.Sống trong ngôi nhà 8m2 liệu có khả thi?
Bạn có tin chỉ trong 8m2 vẫn có đầy đủ các phòng chức năng? Hãy cùng khám phá căn hộ của cô nàng Emma sống tại Tokyo, Nhật Bản.Khiến báo mỹ trầm trồ, nhà gạch tại Đà Nẵng có gì đặc biệt?
Ngôi nhà 80m2 với thiết kế cực kỳ ấn tượng với cách sắp xếp gạch thô độc đáo, hãy cùng tìm hiểu thêm về thiết kế bên trong căn nhà, có thể bạn sẽ có được ý tưởng thiết kế mới cho căn hộ của mình.Nên làm cầu thang bằng gỗ hay bằng kính?
Cầu thang là phương tiện để kết nối không gian giữa các tầng với nhau. Cầu thang không chỉ đơn giản là sợi dây để kết nối các tầng với nhau mà việc thiết kế cầu thang là cả một nghệ thuật.
BÌNH LUẬN


























