Top 5 mẫu thiết kế nhà 2 tầng mái thái dẫn đầu xu hướng năm 2020!
Chưa bao giờ lỗi mốt, nhà 2 tầng mái thái luôn là sự lựa chọn hàng đầu của nhiều hộ gia đình không phân biệt thành thị hay nông thôn bởi nó phù hợp với các hộ gia đình dù là ít hay nhiều thành viên.

Đời sống kinh tế ngày càng ổn định, con người ngoài những nhu cầu về ăn ngon, mặc đẹp, dần dần người ta quan tâm nhiều hơn đến không gian sống. Không chỉ ở phố thị, ngay cả những gia đình ở nông thôn cũng dần coi trọng các mẫu thiết kế trước khi thi công. Những mẫu nhà 2 tầng mái thái là sự lựa chọn hàng đầu của nhiều gia đình Việt trong năm 2020 này. Hãy cùng YouHomes khám phá Top 5 mẫu thiết kế nhà 2 tầng mái thái dẫn đầu xu hướng năm nay nhé!
Xem thêm
Tổng hợp mẫu thiết kế nhà cấp 4 mái thái 3 phòng ngủ mới nhất 2020!
Ngây ngất những mẫu biệt thự Pháp đẳng cấp nhất đầu năm 2020!
Top 20 cây hợp phong thủy, đem tài lộc về cho gia chủ trong năm 2020!
Mẫu nhà chữ L mái thái 2 tầng hiện đại 110m2 ở nông thôn
Diện tích thiết kế: 110m2
Kinh phí đầu tư: 1.5 tỷ
Thiết kế công năng:
Tầng 1: phòng khách, phòng bếp ăn, phòng ngủ 1, nhà vệ sinh chung
Tầng 2: phòng ngủ 2, phòng ngủ 3, phòng ngủ bố mẹ, phòng thờ, nhà vệ sinh chung
Ngôi nhà với mặt tiền rộng và thoáng được kiến trúc sư triển khai thiết kế tập trung vào kết cấu mái và ban công ở tầng 2. Tường bao thiết kế đan xen giữa những khối tường bê tông và khoảng không được lắp ghép bằng khung nhôm định hình theo chiều ngang, tạo nên tường rào khá đẹp mắt và kiên cố.
.png)
Mẫu nhà chữ L mái thái 2 tầng hiện đại 110m2 ở nông thôn
Phần mái cửa cổng thay vì đổ mái bê tông bằng, kiến trúc sư tận dụng tạo rãnh bồn hoa, tận dụng trồng tiểu cảnh nhỏ trang trí, vừa giúp không gian sống thêm phần tươi mới, mặt khác cũng giúp giữ cho kết cấu thi công thêm phần vững chắc.
Hình khối khỏe khoắn, kiên cố và bề thế, trụ cột vuông được triển khai chạy thẳng từ mặt tiền tầng 1 cho đến tầng 2, đảm nhận luôn kết cấu phần hồi, chống đỡ lực cho toàn bộ mái phía trên. Kiến trúc tạo nên một không gian sống ấn tượng, bề thế, cách xử lý tinh tế với những đường chỉ kẻ lõm chạy ngang tạo nên những đường nét nhẹ nhàng và tinh tế cho mặt tiền.
Kiến trúc mái thái màu xám đen, điểm tô màu xám nhạt, kết hợp với màu sơn trung tính như màu xanh sám, màu trắng, màu nâu, tạo mặt tiền nổi bật với ngoại thất hài hòa.
Khoảng tường trống phần thân chữ L được ốp lam nhôm, kết hợp với hệ thống lan can kính cường lực sử dụng kính dán và khối lam bê tông gần phần mái phía trên, phô diễn những đường nét khá chắc chắn.
Bản vẽ thiết kế mẫu nhà chữ L mái thái 2 tầng hiện đại 110m2 ở nông thôn

Mặt bằng tầng 1 bố trí khá thoáng và đảm bảo mật độ sử dụng. Phòng khách bố trí ngay cạnh cửa chính, cầu thang bộ ở giữa ngăn cách phòng khách và phòng ngủ của ông bà. Bếp và phòng ăn được thiết kế đối diện với sảnh thang, nhà vệ sinh thiết kế ở góc trong, có lối đi phụ ra cửa sau nên thuận tiện cho việc sinh hoạt của gia đình.

Tầng 2 ngay cạnh cầu thang thông tầng, đối diện với ban công nhỏ phía trước là phòng thờ trang nghiêm của gia đình. Phía tay trái phòng thờ là phòng ngủ số 3 cho cô con gái, đối diện bên kia cầu thang là phòng ngủ số 2 của anh con trai. Phòng ngủ của bố mẹ thiết kế đối diện sảng thông tầng, góc cuối hành lang tầng 2 là nhà vệ sinh chung của cả tầng.
Mẫu nhà 2 tầng mái thái 2 tầng 4 phòng ngủ 1.3 tỷ đồng
Diện tích thiết kế: 140m2
Kinh phí đầu tư:1.3 tỷ
Thiết kế công năng: 4 phòng ngủ, phòng thờ, phòng khách, phòng bếp
Nền đất xây dựng công trình khá cứng chắc, ngay cạnh mặt đường nên thuận tiện cho việc thi công móng và chuyển chở nguyên vật tư. Toàn bộ chân tường được ốp gạch màu nâu xám, thiết kế cao gần 50 phân, vừa đảm bảo hiệu ứng thẩm mĩ chung cho công trình, vừa giúp công trình không bị hiện tượng ngấm nước mưa và rong rêu.

Mẫu nhà 2 tầng mái thái 2 tầng 4 phòng ngủ 1.3 tỷ đồng
Hình khối kiến trúc thiết kế theo hình chữ L, thiết kế hai sảnh chính và phụ trước mặt tiền, thiết kế trụ vuông cùng với thiết kế bậc tam cấp cao, ốp đá màu nâu tối, thể hiện những đường nét khoẻ khoắn, tinh tế cho toàn bộ công trình. Những đường gờ chạy ngang thân tường trước mặt tiền, đem đến hiệu ứng thẩm mĩ độc đáo và thể hiện những đường nét tinh tế cuốn hút, phân biệt với những mẫu thiết kế bên cạnh.
Hình khối kiến trúc mẫu nhà 2 tầng mái thái bề thế và vững chắc, thiết kế khối trụ với những mảng bố cục cân đối, thiết kế trụ cột vuông chống chịu lực kết cấu cho toàn bộ công trình nhà đẹp 2 tầng. Khối ban công mẫu nhà đẹp thay vì sử dụng ban công bằng bê tông, kiến trúc sư thiết kế lan can bằng kính cường lực, thiết kế dày dặn, màu sắc tươi sáng, ăn nhập với ngoại thất công trình, đồng thời có thể giúp công trình đón nhận được nhiều ánh sáng cũng như gió thoáng.

Mẫu nhà 2 tầng mái thái 2 tầng 4 phòng ngủ 1.3 tỷ đồng
Thiết kế mái thái màu đỏ, thiết kế mái giật cấp phi đối xứng, cùng với thiết kế phần lam bê tông phía tầng thượng trên tầng 2, tạo nên sức hút đồng bộ cho mẫu nhà đẹp. Hệ thống cửa nhôm xingfa đẹp màu nâu vân gỗ được lắp đặt thay cho hệ thống cửa nhựa lõi thép, cửa gỗ, dễ dàng sử dụng đồng thời có thể kiến tạo nên một không gian sống tiện nghi và đầy mới mẻ cho mẫu nhà.
Ngoại thất sáng màu thiết kế ăn nhập từ ngoại thất cho đến nội thất. Thiết kế kiến trúc mái hài hoà tổng thể với phối cảnh kiến trúc của công trình, do đó mẫu nhà hoàn toàn chinh phục chủ đầu tư ngay trong ngày đầu triển khai ý tưởng thiết kế sơ bộ cho đến khi hoàn thiện ý tưởng thiết kế 3D.
Bản vẽ thiết kế mẫu nhà 2 tầng mái thái 2 tầng 4 phòng ngủ 1.3 tỷ đồng

Phòng khách mẫu nhà 2 tầng nông thôn được bố trí sát với cửa chính ngay cạnh sảnh chính của công trình, cầu thang thông tầng được bố trí ngay cạnh phòng khác. Một sập gỗ lớn có thể tận dụng để uống nước và trò chuyện được thiết kế ngay cạnh phòng khách. Bên trong mặt bằng tầng 1 được bố trí 2 phòng ngủ, phòng ngủ của bố mẹ thiết kế hướng gần với phòng khách và sập gụ, phòng ngủ 1 thiết kế phía trong, nhà vệ sinh chung được bố trí góc trong cùng thuận tiện cho việc di chuyển của các thành viên.

Bản vẽ thiết kế nhà 2 tầng ở nông thôn bố trí khoảng sân phơi khá thoáng và rộng trên tầng thượng, thiết kế phòng thờ hướng ban công trước, đón nhận được nhiều gió thoáng và ánh sáng tự nhiên. Từ sảnh thang lui vào phía trong, thiết kế 2 phòng ngủ, thiết kế liền kề về hai phía. Nhà vệ sinh chung được bố trí ở góc trong cùng của công trình cuối hành lang, thuận tiện cho việc di chuyển và sinh hoạt chung.
Mẫu nhà 2 tầng mái thái 2 tầng 100m2 - 5 phòng ngủ
Diện tích thiết kế: 100m2
Kinh phí đầu tư: 1.4 tỷ
Thiết kế công năng:
Tầng 1: phòng khách, 2 phòng ngủ, tủ đồ
Tầng 2: 3 phòng ngủ, 1 phòng thờ, WC, tủ đồ

Mẫu nhà 2 tầng mái thái 2 tầng 100m2 - 5 phòng ngủ
Mẫu căn nhà 2 tầng đẹp 110m2 thiết kế theo cấu trúc villa mini hiện đại có ngoại thất sơn màu trắng mái lợp ngói màu xanh ghi nhanh nhạy. Chân tường ốp đá rối và dùng hệ thống cửa kính khung gỗ mộc sang trong làm cho ngoại thất ngôi nhà xinh có độ tương phản và thanh lịch nhìn trông bề thế.
Bản vẽ mẫu nhà 2 tầng mái thái 2 tầng 100m2 - 5 phòng ngủ

Thiết kế nhà 2 tầng ở nông thôn tổng diện tích sàn 110m2 thiết kế ngoài mặt có khoảng sân rộng. Xung quanh khuôn viên thiết kế có bồn hoa trồng cây cảnh xanh chống bụi bẩn và một phần giúp nhìn từ bề ngoài trục lộ liên thôn vào khang trang và hòa nhã hơn. Ngoài ra, mẫu thiết kế nhà biệt thự mini trên tổng diện tích 100m2 2 tầng hình vuông phía ngoài hàng cột tòa nhà vuông đẹp 40cm có gắn thêm 2 tuýp đèn Neon buổi tối bật lên view nhìn rất tráng lệ.

Mẫu ngôi nhà 2 tầng mái thái 5 phòng ngủ này có kiến trúc mang nét villa tòa nhà vườn mini kiểu Châu Âu được phủ rộng viền mái đổ bê tông cốt thép kẻ viền trang trí chỉ và có dẫn giải pháp thu nước. Từ phòng thờ đi ra có cửa 4 cánh rộng thoáng và ban công kính cường lực hai bên bố cục thêm 2 chậu kiểng nhằm tạo thêm điểm nhấn cho mặt phố villa xanh sạch đẹp chuẩn theo tiêu chí cấu trúc tòa nhà đẹp xu hướng cởi mở môi trường ngày nay.
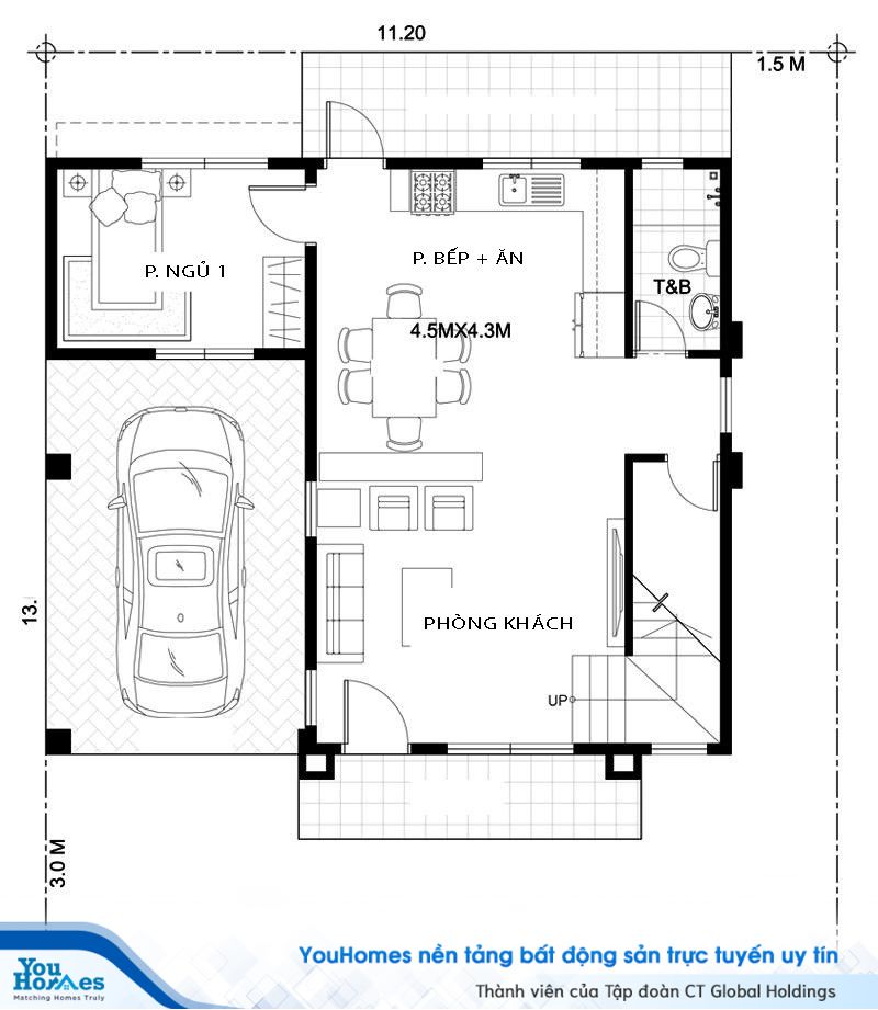
Mẫu nhà 2 tấng mái thái đơn giản có gara ô tô
Diện tích thiết kế: 110m2
Kinh phí đầu tư: 1.3 tỷ
Thiết kế công năng:
Tầng 1: gara. phòng khách, phòng bếp ăn, phòng ngủ 1, nhà vệ sinh chung
Tầng 2: phòng ngủ master, phòng ngủ 2

Mẫu nhà 2 tấng mái thái đơn giản có gara ô tô
Hình khối kiến trúc nhìn từ xa khá kiên cố, bền vững và thể hiện những đường nét khỏe khoắn đồng thời thể hiện kết cấu đảm bảo cho tuổi thọ của công trình. Để có thể có không gian để xe thoáng và khoa học, việc xử trí mặt tiền sẽ chú trọng đến tính thoáng và cao. Để tạo được điều đó, khối ban công tầng thượng cần được đua mở rộng theo không gian.
Toàn bộ phần chân tường và chân cột đều được trang trí với những đường gờ chỉ chạy ngang, cùng với thiết kế khoảng trống phía trước, khối dầm tầng 2 đua rộng tạo nên một phối cảnh kiến trúc cân đối với tổng thể chung.

Mẫu nhà 2 tấng mái thái đơn giản có gara ô tô
Màu sắc ngoại thất hài hòa, gam màu trung tính được sử dụng kết hợp cùng với hệ thống cửa kính nhôm Xingfa, vừa đón nhận được nhiều ánh sáng, vừa có thể giúp cho dòng vượng khí lưu thông đồng bộ trong các không gian khác.
Một cảm giác yên bình, vững chắc, khối kiến trúc kết hợp ăn ý với ngoại thất, mang đến những cảm hứng tích cực cho không gian. Mẫu thiết kế nhà 2 tầng nông thôn hoàn toàn chiếm được cảm tình của chủ đầu tư ngay sau khi nhìn thấy phối cảnh thiết kế.
Bản vẽ mẫu nhà 2 tấng mái thái đơn giản có gara ô tô

Không gian để xe tầng 1 được thiết kế chú trọng riêng về một góc, phòng khách được bố trí ngay cạnh cửa chính cửa ra vào nên thuận tiện cho việc di chuyển cũng như sinh hoạt của các thành viên trong gia đình. Thiết kế liền kề liên thống với phòng khách là phòng bếp, nhà vệ sinh chung được bố trí lui về góc phía tay phải của mặt bằng. 1 phòng ngủ được thiết kế lui phía trong không gian để xe, cửa chính cửa phòng thiết kế gần với phòng ăn, việc thiết kế không gian ở góc như thế này có thể tối ưu hóa diện tích, đảm bảo mật độ chức năng sinh hoạt chung cho gia đình.

Tầng 2 thiết kế và bố trí 2 phòng ngủ, phòng ngủ master hướng chính hướng ban công trước. phòng ngủ số 2 được thiết kế lui vào phía trong. Do cầu thang thông tầng được bố trí lui ở góc, do đó kiến trúc sư đã biết tận dụng không gian để thiết kế nhà vệ sinh lui về góc đối diện với cầu thang.
Khoảng ban công tầng thường bố trí rộng và thoáng, không chỉ thuận tiện cho việc sử dụng làm sân chơi, sân phơi, nó còn đảm bảo sự cân đối với mặt bằng chung trong tổng thể không gian thiết kế kiến trúc và mặt bằng.
Mẫu nhà 2 tầng mái thái 120m4 – 4 phòng ngủ
Diện tích thiết kế: 120m2
Kinh phí đầu tư: 1.5 tỷ
Thiết kế công năng:
Tầng 1: gara để xe, phòng khách, phòng bếp, phòng ngủ 1
Tầng 2: phòng ngủ master, phòng ngủ số 2 và số 3, phòng sinh hoạt chung, nhà vệ sinh chung
Hình khối kiến trúc mẫu nhà 2 tầng nông thôn khá kiên cố, bề thế đúng như quan niệm nhà cao cửa rộng của cha ông xưa. Khoảng mặt tiền trước thiết kế thoáng mát, hệ thống bậc tam cấp thiết kế nhiều bậc cùng với phần chân móng được tôn cao, giúp cho kết cấu công trình thêm phần bền vững và chắc chắn, một cảm giác an toàn với tuổi thọ khi sử dụng sẽ giúp gia đình gặp nhiều may mắn.
.jpg)
Mẫu nhà 2 tầng mái thái 120m4 – 4 phòng ngủ
Hệ thống trụ cột được thiết kế theo khối vuông, gắn liền với kết cấu mặt tiền, cách xử lý những khối vòm trước cùng với kiến trúc mái thái giật cấp, đua rộng, họa tiết trang trí ở phần mái, giúp cho hình khối hài hòa và phô diễn những đường nét khỏe mạnh của không gian.
Sự mềm mại và thanh thoát của không gian được điểm tô và thể hiện qua những chi tiết phần đầu hồi. Hệ thống thanh lam trang trí trên phần mái cùng với những đường gờ chỉ nhỏ chạy ngang thân tường cũng như khoảng tường được trang trí đẹp mắt với gạch nghệ thuật ốp tường màu xám sáng giúp ngoại thất tươi sáng và tràn ngập sức sống.
Mẫu thiết kế hiện đại đơn giản, không gian sống thoáng mát, hệ thống cửa được lắp đặt nhiều với kích thước chuẩn thước Lỗ Ban, đảm bảo cho không gian sống tràn ngập dòng vượng khí.
Bản vẽ mẫu nhà 2 tầng mái thái 120m4 – 4 phòng ngủ

Mặt bằng công năng sử dụng của tầng 1 chủ yếu bố trí không gian sinh hoạt chung. Phòng khách được bố trí ngay cạnh cửa chính, phía trong trung tâm là cầu thang thông tầng. Gara để xe được thiết kế song song với phòng khách, thiết kế kín và rộng nên đảm bảo không gian sử dụng cho các thành viên, không ảnh hưởng mùi xăng xe ra các không gian khác. Phòng bếp nấu và phòng ăn được thiết kế liên thông ở góc trong cùng, phòng ngủ nhỏ dành cho ông bà bố trí đối diện sảnh thang thông tầng.

Tầng 2 toàn bộ mẫu thiết kế nhà 2 tầng mái thái 120m2 4 phòng ngủ là không gian sinh hoạt riêng của gia đình, thiết kế hai phòng ngủ có nhà vệ sinh khép kín, 1 phòng ngủ hướng ban công trước nên đón nhận được nhiều gió và ánh sáng, từ đó phân bổ cho các không gian bên trong. 1 phòng sinh hoạt chung được thiết kế và bố trí đối diện với phòng ngủ gần sảnh thang thông tầng, với cách bố trí khoa học này, các thành viên trong gia đình hoàn toàn có thể sinh hoạt chung với nhau khá gần gũi.
Mẫu thiết kế nhà 2 tầng mái thái 120m2 hiện đại, kiến trúc tinh tế, đáp ứng tối đa nhu cầu sử dụng của gia đình đông thành viên.
Hy vọng với những gợi ý từ YouHomes, bạn sẽ chọn được mẫu thiết kế nhà ưng ý!
Có lẽ bạn nên đọc thêm
Đâu là thiết kế biệt thự 2 tầng lý tưởng cho bạn?
Khi lựa chọn thiết kế biệt thự 2 tầng, bạn sẽ phải đau đầu lựa chọn ra cách thiết kế hợp lý nhất để vừa đảm bảo thẩm mỹ vừa tiện dụng. Bài viết sau YouHomes sẽ giúp bạn có sự lựa chọn dễ dàng hơn.Sống trong ngôi nhà 8m2 liệu có khả thi?
Bạn có tin chỉ trong 8m2 vẫn có đầy đủ các phòng chức năng? Hãy cùng khám phá căn hộ của cô nàng Emma sống tại Tokyo, Nhật Bản.Khiến báo mỹ trầm trồ, nhà gạch tại Đà Nẵng có gì đặc biệt?
Ngôi nhà 80m2 với thiết kế cực kỳ ấn tượng với cách sắp xếp gạch thô độc đáo, hãy cùng tìm hiểu thêm về thiết kế bên trong căn nhà, có thể bạn sẽ có được ý tưởng thiết kế mới cho căn hộ của mình.Nên làm cầu thang bằng gỗ hay bằng kính?
Cầu thang là phương tiện để kết nối không gian giữa các tầng với nhau. Cầu thang không chỉ đơn giản là sợi dây để kết nối các tầng với nhau mà việc thiết kế cầu thang là cả một nghệ thuật.
BÌNH LUẬN



























